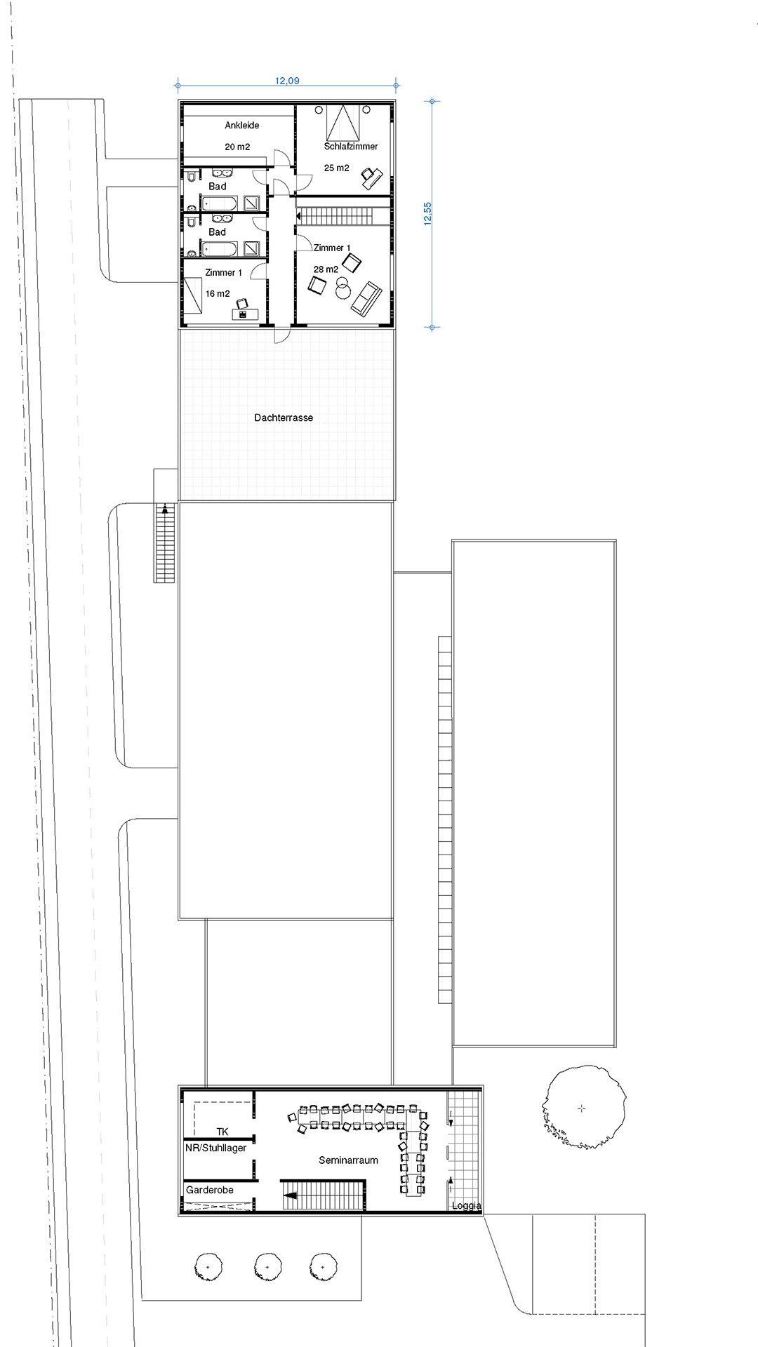
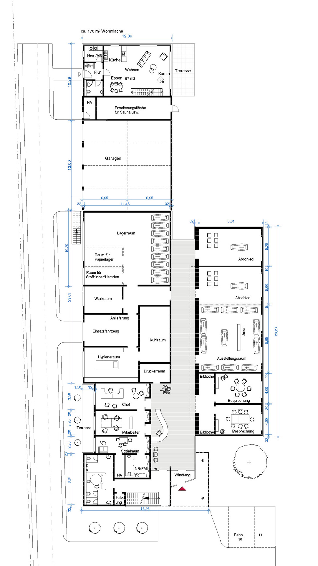
Am Dortmunder Hauptfriedhof sollte ein Bestattungsinstitut entstehen, welches eine umfassende Betreuung von Trauernden übernehmen sollte. Neben Verwaltungs-, Besprechungs- und Seminarräumen wurden Trauerräume und ein Trauergarten gestaltet, welche die Abschiednahme für Hinterbliebene ermöglichen sollte. Ebenso wurden alle zur Bestattung notwendigen, technischen Räume in einem separaten Gebäuderiegel untergebracht.

  • Leistung: LP 1-3

 

View the embedded image gallery online at:
https://www.bertbielefeld.com/index.php/0602-got#sigProId5b0b7cefcb

 

Zur Projektübersicht